【長野県諏訪郡富士見町落合】ファミリー向け7LDK
富士見駅に比較的近い立地。定住者にお勧めな建物
ローンシミュレーションこの物件を購入した場合の、月々の支払い価格の一例です。借り入れを保証するものではございません。
- 返済期間
-
- 金利
-
- ボーナス時の増額(1回分)
-
- 借入金額:
-
- 頭金:
-

- 毎月の返済額:
(※元利均等方式 金利5.00%まで ※返済年数5~50年まで入力できます)
(※ボーナスは年2回で計算しています。1000万円まで入力できます)
(※物件購入時、その他諸費用が発生する場合がございます)
担当者のコメント 小林 寛和

- 一般住宅でありながら部屋数の多い建物です。日当たりも良く駅にも近いのでファミリー向けの方にお勧めです。
物件概要
【中古一戸建】 物件番号:93886489 情報更新日:2025年11月06日 次回更新予定日:2025年11月20日| 所在地 | 長野県諏訪郡富士見町落合 | ||
|---|---|---|---|
| 交通 | |||
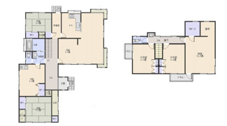
| 間取り/詳細 | 7LDK/ | 建物面積(坪数) | 179.37㎡(54.25坪) |
| 価格 | 1,500万円 | ||
| 駐車場/月額料金 | -/- | ||
| 土地の敷金/保証金 | -/- | 借地料/借地期間 | -/- |
| 土地権利 | 所有権 | 土地面積(坪数) | 608.00㎡(183.91坪) |
| 傾斜地部分面積 | - | 路地状敷地 | - |
| 私道負担面積/セットバック | -/無 | 高圧線下面積 | - |
| 地目/地勢 | 宅地/- | 接道状況 | 一方(南 公道 2.2m 間口 23.0m)(北西 公道 2.0m 間口 2.0m) |
| 建ぺい率/容積率 | 60%/200% | 用途地域 | 無指定 |
| 都市計画 | - | 種別/構造 | 中古一戸建/木造 |
| 階建 | 2階建 | 築年月(築年数) | 1991年 8月 (築34年) |
| 総区画数/販売区画数 | -/- | 向き | - |
| 現況 | 居住中 | その他の法令上の制限 | 景観法 |
| 取引態様/引渡時期 | 一般媒介/相談 | 建築確認番号 | - |
| 物件番号 | 93886489 | 取引条件の有効期限 | 2025年11月20日 |
| 設備条件 |
|
||
| 備考 |
1.売主様が居住中の為、内覧には事前のご予約が必要です。 2.売主様の引越しや残置物処分などがある為、引き渡しに時間が掛かる可能性があります。 3.メインのキッチン以外に小さなキッチンスペースがあります。 |
||
| 取扱会社 |
|
||
※地図上に表示される物件の位置は付近住所に所在することを表すものであり、実際の物件所在地とは異なる場合がございます。








